
INCH-POUND
MIL-PRF-3098/120E
11 July 2011
SUPERSEDING
MIL-PRF-3098/120D
27 July 2005
PERFORMANCE SPECIFICATION SHEET
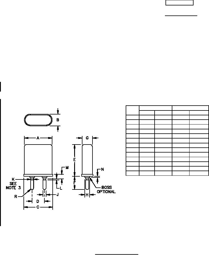
CRYSTAL UNIT, QUARTZ, CR131/U
This specification is approved for use by all Departments
and Agencies of the Department of Defense.
The requirements for acquiring the product described herein
shall consist of this specification sheet and MIL-PRF-3098.
Pertinent characteristics: 0.8 MHz to 20 MHz; fundamental; controlled; antiresonance.
Ltr
Inches
mm
Min
Max
Min
Max
A
---
.725
---
18.42
B
---
.352
---
8.94
C
---
.757
---
19.23
D
.460
.476
11.68
12.09
E
---
.775
---
19.69
F
.223
.248
5.66
6.30
G
---
.317
---
8.05
H
.075
.141
1.91
3.58
J
.048
.052
1.22
1.32
K
.030
.037
0.76
0.94
L
.015
.025
0.38
0.64
M
.010
.070
0.25
1.78
N
.015
.025
0.38
0.64
NOTES:
1. Dimensions are in inches.
2. Metric equivalents are given for general information only.
3. The pin undercut may be omitted.
4. Marking shall be in accordance with MIL-PRF-3098.
FIGURE 1. Crystal unit - CR131/U.
AMSC N/A
FSC 5955
For Parts Inquires call Parts Hangar, Inc (727) 493-0744
© Copyright 2015 Integrated Publishing, Inc.
A Service Disabled Veteran Owned Small Business